︎
quique bayarri
photo
about
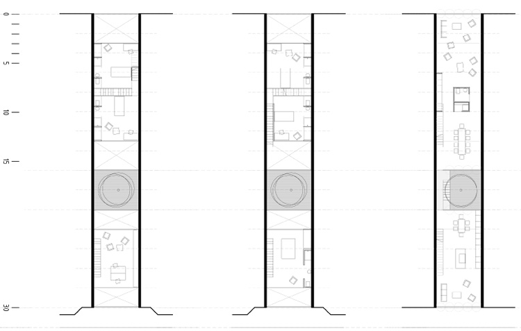
C1104
Competition
2011
Berlin (DE)
Two experimental houses in a 30x5m plot in between buildings in Berlin.
Design for
Arquia 2011
contest.