︎
quique bayarri
photo
about
C2001
Competition
2020
Oslo (NO)
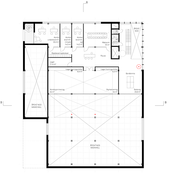
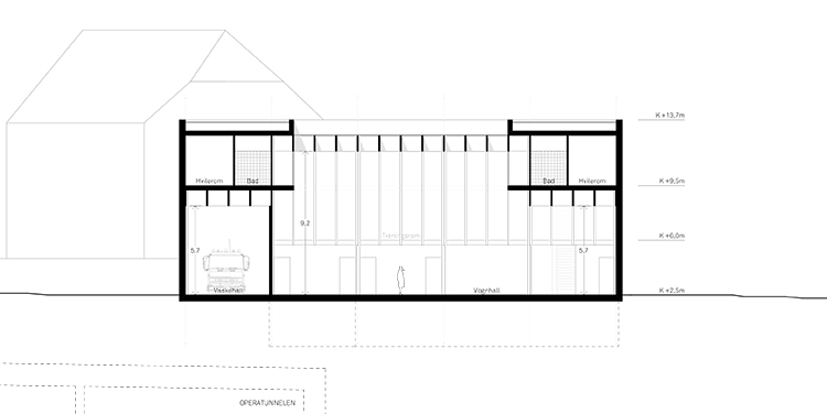
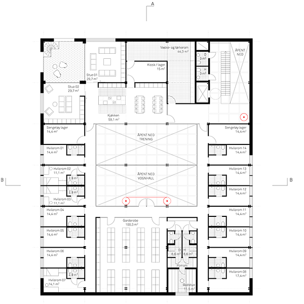
Competition entry for the new main fire station in Bjørvika (Oslo) under the motto
__hel ved
. In association with
Henning Klouman
.