︎
quique bayarri
photo
about
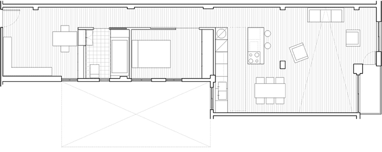
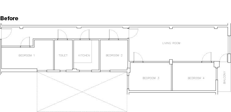
R1301
Refurbishment
2013-17
Puçol (ES)
Refurbishment of a 75m
2
flat for a single man. The new solution is aimed to maximizes the benefits of direct daylight and cross ventilation.