R1901
Refurbishment
2019
Puçol (ES)
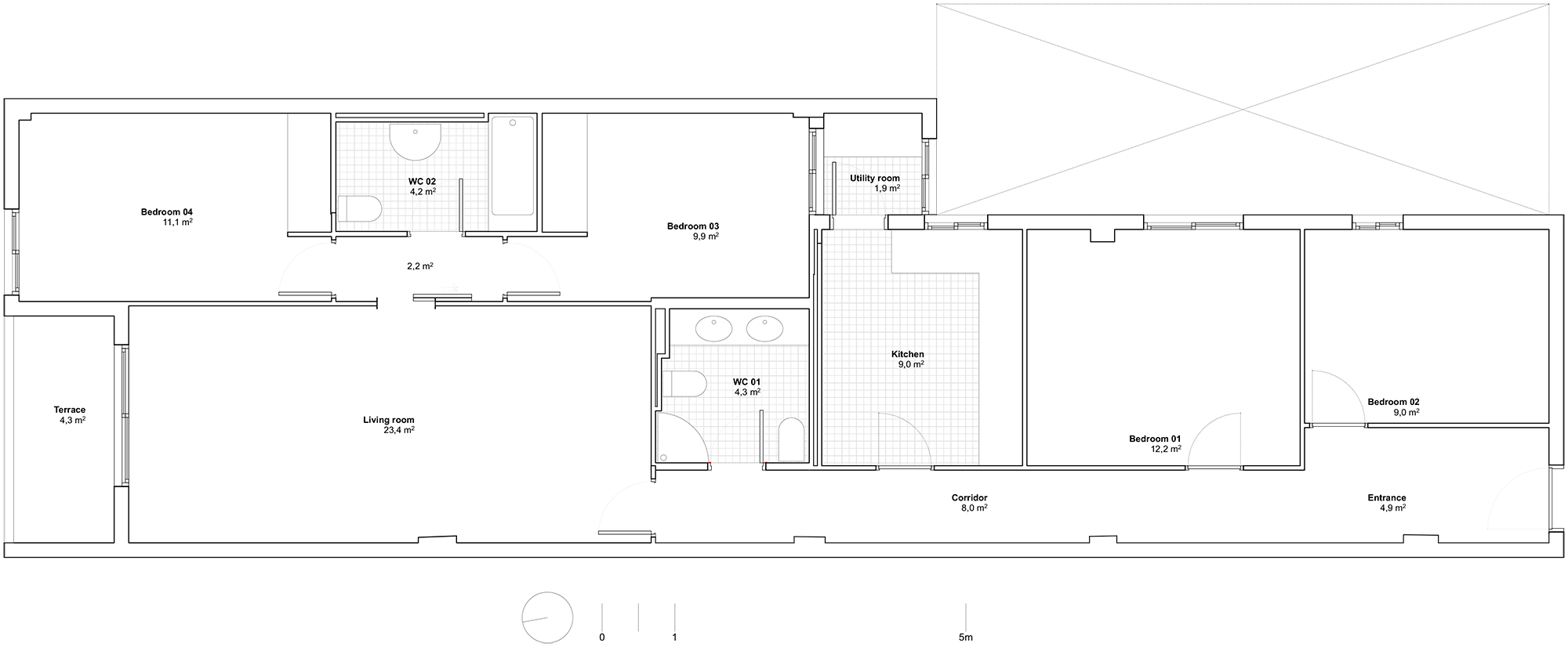
Complete refurbishment of a 110m2 apartment overlooking the orange tree fields, the mountains and the sea beyond. The surrounding clay roofs inspired the choice of materials, with tiles connecting the outside with the interior. The main space is organized around a wooden core containing storage and parts of the kitchen appliances. The new layout enhances both cross-ventilation and access to daylight.
Photography: Mariela Apollonio





















Before


Situation
