R2004
Refurbishment
2020-21
Xixona (ES)
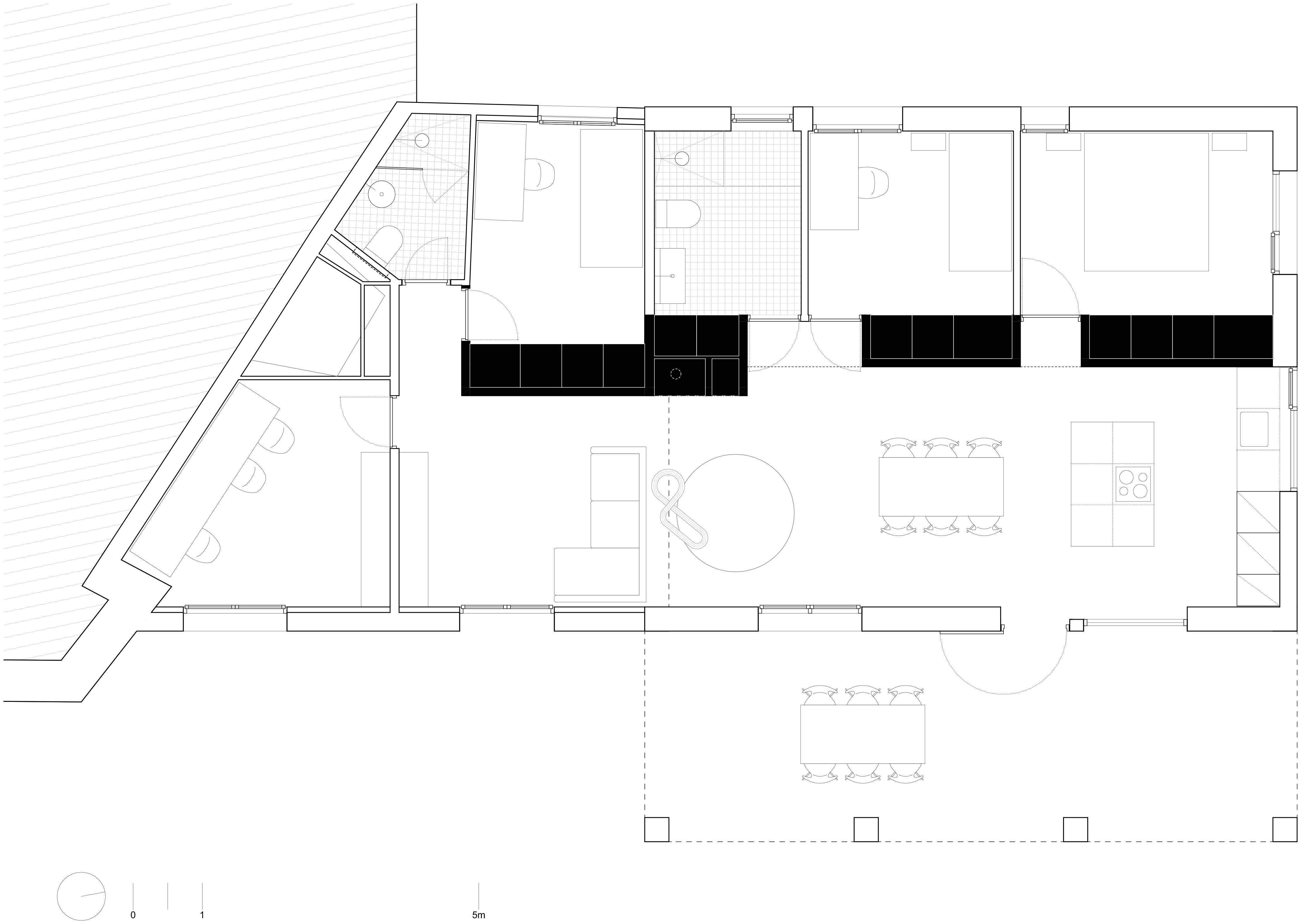
Conversion of a 105m2 self-built weekend house and garage into a house. The house is located outside the village of Xixona high up in the mountains. The original house was built in the ‘80s by the former owners, a folkloric interpretation of a chalet with an arched porch. An annex, a garage and a storage room were added in the early ‘90s.
Despite the building’s poor thermal performance and the low quality of the existing structure, a new-build was not seen as a viable option due to the embodied energy from demolition, transportation and re-building. Rather, the renovation was used as an opportunity to restructure the existing building, maximising both light and solar energy gain. This was achieved by adding insulation and the construction of an internal brick wall, acting as thermal storage.
Photography: Quique Bayarri








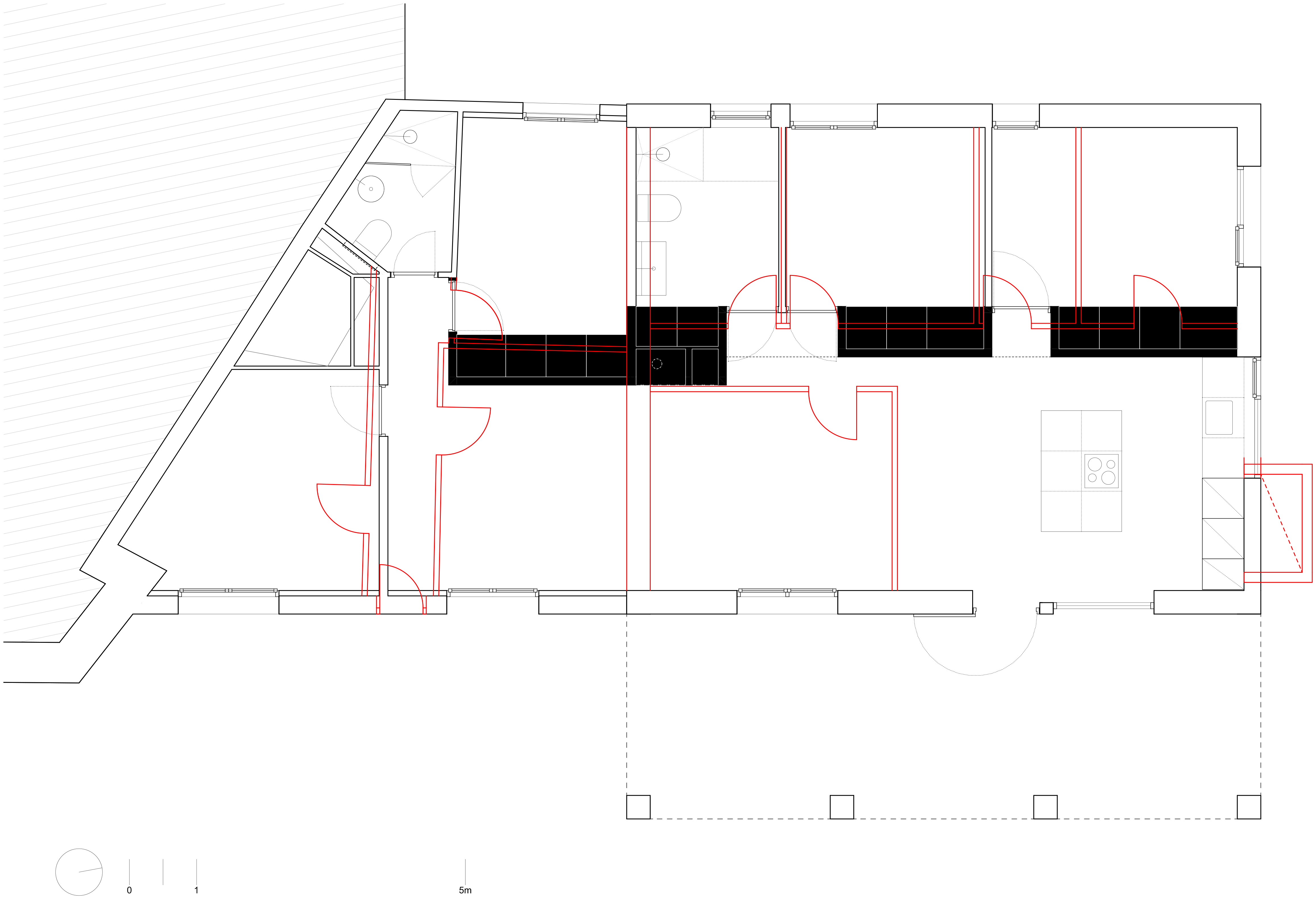
New vs demolished

Situation
